WPR delivers  
  Call Reva at 866-245-3630 for a “sweet deal,” great prices & excellent service.  

13591 Chandler St. • Omaha, NE 68138 • 866.245.3630 • Fax 866.245.3631 • reva@westpointrack.com


menu_homemenu_contactmenu_cantilevermenu_structural_palletmenu_portable_stackingmenu_speciality_productsmenu_search

 

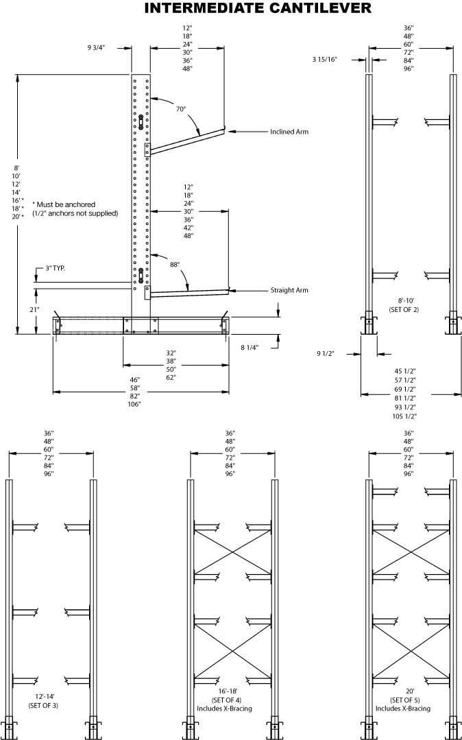
Intermediate Duty Cantilever Specifications (download pdfpdf)

WPR intermediate duty cantilever specifications

 

 

WWW westpointrack.com

West Point Rack site index

Site developed by Promo-Mart®